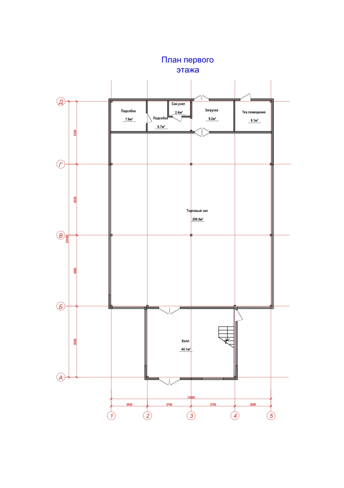
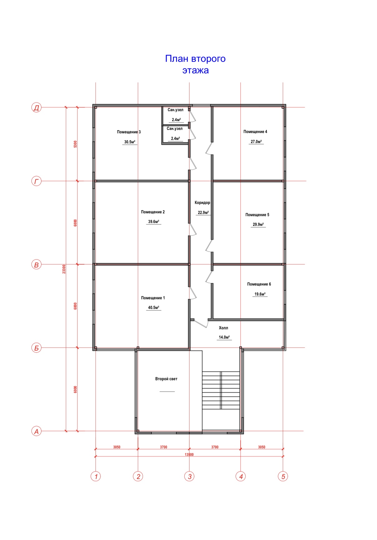
Продам торговое помещение 507.2 м.кв.

Просмотров 3
20 000 000 руб.
Псков , Молодова улица, д.17
Галина
Показать телефон
Данные актуальны на 26.02.2026
Пожаловаться на объявление
В продаже надежный вариант для инвестиций в КОММЕРЧЕСКУЮ НЕДВИЖИМОСТЬ в самом центре Завеличья. Отдельно стоящее 2-х этажное здание площадью 507.2 м2, расположенное на земельном участке площадью 750 м2, на котором располагается парковка с достаточным количеством машино-мест. Здание полностью возведено, проведены все коммуникации, для сдачи в эксплуатацию необходимо выполнить благоустройство, участок находится в долгосрочной аренде с возможностью выкупа в собственность, что является важным преимуществом. Вид разрешенного использования: для размещения объектов торговли, магазины. Имеются все коммуникации, высота потолков 5 метров, мощность - 45 кВт, индивидуальное газовое отопление. Погрузка и разгрузка с обратной стороны здания. Рядом остановки общественного транспорта, здание отлично просматривается с проезжей части со стороны улицы Юбилейная. Огромный жилой массив, большой пешеходный и автомобильный трафик, рядом автобусные остановки. Местоположение обеспечивает стабильный поток клиентов. Звоните, чтобы обсудить детали и получить дополнительную информацию!

Дополнительная информация

Тип здания Жилой дом Этаж 1 Этажность 2 Количество комнат - Вход - Ремонт Без ремонта
Интернет - Кондиционер Нет Вентиляция Есть Пожарная сигнализация - Красная линия - Входные группы -
Объекты, находящиеся поблизости
Медучреждения
Аптека 532м
Динамика изменения цен на рынке недвижимости ?

За последние полгода средняя сумма за кв.м. выросла на 2182 руб. Колебание цен происходило от 19137 руб. до 21539 руб. На текущий момент наблюдается тенденция к уменьшению цены.
Вход в личный кабинет